9/330 Stanley Street NORTH WARD QLD 4810
2
1
1
Sold by Shelly and Graham Lynham
Tightly held and as such seldom available, this top floor unit offers the buyer a unique opportunity to secure a unit with unobstructed sea views towards Magnetic Island and out towards Kissing Point.
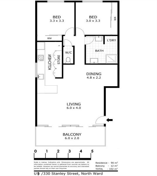
With a large open plan living area, which captures the sea breezes which flow over the balcony into the unit, you can't help but be drawn into the relaxed lifestyle and ambience this setting offers.
With two large bedrooms with built-in robes, a modern kitchen and bathroom, and complimented by split system air-conditioning throughout, it offers a buyer opportunity to simply move in.
Located on Castle Hill Road and just minutes from the city and the strand, and sitting in the shadow of our famous hill, you would be hard-pressed to find a more convenient location in Townsville.
.
The Property
- Top Floor unit with unobstructed panorama
- Balcony at the front to enjoy the Island views
- Spacious open plan living
- High cathedral ceilings to living areas
- Fully air-conditioned with split systems
- Freshly painted
- Security roller blinds to bedrooms
- Carpeted throughout
- Lockable storage room
- Undercover parking
- Complex has just had a new roof to all units
- Affordable body corporate fees
The Location
- Short stroll to The Strand
- Close to schools
- Close to transport
- Close to shops
- Short drive to Palmer Street Restaurants
- Walk the hill from the front of your driveway
Disclaimer: Whilst every care is taken in the preparation of the information contained in this marketing, Graham Lynham Real estate will not be held liable for any errors in typing or information. All photographs, facades, colour schemes, floor plans and dimensions are for illustrative purposes only and may vary slightly to the end product. All interested parties should rely upon their own enquiries in order to determine whether or not this information is in fact accurate.
With a large open plan living area, which captures the sea breezes which flow over the balcony into the unit, you can't help but be drawn into the relaxed lifestyle and ambience this setting offers.
With two large bedrooms with built-in robes, a modern kitchen and bathroom, and complimented by split system air-conditioning throughout, it offers a buyer opportunity to simply move in.
Located on Castle Hill Road and just minutes from the city and the strand, and sitting in the shadow of our famous hill, you would be hard-pressed to find a more convenient location in Townsville.
.
The Property
- Top Floor unit with unobstructed panorama
- Balcony at the front to enjoy the Island views
- Spacious open plan living
- High cathedral ceilings to living areas
- Fully air-conditioned with split systems
- Freshly painted
- Security roller blinds to bedrooms
- Carpeted throughout
- Lockable storage room
- Undercover parking
- Complex has just had a new roof to all units
- Affordable body corporate fees
The Location
- Short stroll to The Strand
- Close to schools
- Close to transport
- Close to shops
- Short drive to Palmer Street Restaurants
- Walk the hill from the front of your driveway
Disclaimer: Whilst every care is taken in the preparation of the information contained in this marketing, Graham Lynham Real estate will not be held liable for any errors in typing or information. All photographs, facades, colour schemes, floor plans and dimensions are for illustrative purposes only and may vary slightly to the end product. All interested parties should rely upon their own enquiries in order to determine whether or not this information is in fact accurate.
Details
Price
$375,000
Property Type
Unit
Year Built
1983