38 Eliza Street KELSO QLD 4815
3
1
1
Under Contract By Nathan Lynham 0427695162
With its expansive covered outdoor area overlooking an 853 sqm block adorned with established gardens, you'll have the perfect space to host unforgettable gatherings.
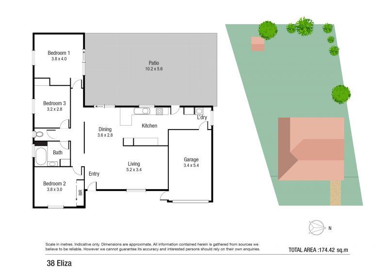
This single-story gem features a low-set design with three bedrooms, all equipped with built-ins for ample storage. The property also boasts a convenient lock-up garage and garden shed, along with double gates on the side for easy access.
THE PROPERTY
- Three bedrooms with built-in wardrobes
- Galley-style kitchen with ample storage & bench space
- Open plan lounge & dining area
- Main bathroom with shower over bathtub & separate toilet
- Internal laundry with direct external access
- Large undercover patio
- Fully fenced 853 sqm allotment with side gate access
- Currently rented at $290 per week until Jan 24
- Rates - $3,737.78 per year
THE LOCATION
- Close proximity to Kelso State School and Milestones Early Learning
- Close proximity to Ross River Dam and water sports precinct
- Close proximity to Kelso shops and RSL
- Close proximity to schools and bus routes
- Close proximity to Willows Shopping Centre
- Close proximity to Riverway Plaza with supermarket and tavern
- Quick access to the motorway
This single-story gem features a low-set design with three bedrooms, all equipped with built-ins for ample storage. The property also boasts a convenient lock-up garage and garden shed, along with double gates on the side for easy access.
THE PROPERTY
- Three bedrooms with built-in wardrobes
- Galley-style kitchen with ample storage & bench space
- Open plan lounge & dining area
- Main bathroom with shower over bathtub & separate toilet
- Internal laundry with direct external access
- Large undercover patio
- Fully fenced 853 sqm allotment with side gate access
- Currently rented at $290 per week until Jan 24
- Rates - $3,737.78 per year
THE LOCATION
- Close proximity to Kelso State School and Milestones Early Learning
- Close proximity to Ross River Dam and water sports precinct
- Close proximity to Kelso shops and RSL
- Close proximity to schools and bus routes
- Close proximity to Willows Shopping Centre
- Close proximity to Riverway Plaza with supermarket and tavern
- Quick access to the motorway
Details
Price
$290,000
Property Type
House
Land Size
853 m2