7 Justin Street BALGAL BEACH QLD 4816
3
1
2
200 Metres from the beach
This low-maintenance three-bedroom masonry block home is set amongst tropical gardens in the beautiful Northern Beaches suburb of Balgal Beach.
Just 200 metres from the beach off Ocean Parade, with access at the end of the street to beautiful sandy beaches and the Coral Sea, this home has the ability for someone to modernise and reap the rewards.
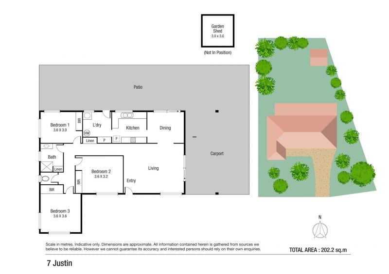
Held in the same hands for many years, it offers three bedrooms, open-plan living and dining and a massive rear entertaining area that wraps around the rear and side of the home.
THE PROPERTY
- Short walk to the beachfront
- 3 Bedrooms
- Functional kitchen
- Functional bathroom
- Open-plan living and dining
- Large rear patio
- Two car carport to the right-hand side
- Generously sized 935 m2 allotment
THE LOCATION
- North of the suburb of Rollingstone
- Recreational boating, fishing and swimming area
- Boat ramp is located by the mouth of Rollingstone Creek,
- Close Mystic Sands Golf & Country Club
- General store/cafe
- Community hall
- Short drive to Balgal Beach Pharmacy and Doctors surgery
Please Note Professional photography and item removal have been used to protect the owner's privacy. Photos are edited to remove owners' belongings and these may show the home to a better standard than how it is presented.
Disclaimer: Whilst every care is taken in the preparation of the information contained in this marketing, Lynham & Co. will not be held liable for any errors in typing or information. All interested parties should rely upon their own enquiries in order to determine whether or not this information is in fact accurate.
Just 200 metres from the beach off Ocean Parade, with access at the end of the street to beautiful sandy beaches and the Coral Sea, this home has the ability for someone to modernise and reap the rewards.
Held in the same hands for many years, it offers three bedrooms, open-plan living and dining and a massive rear entertaining area that wraps around the rear and side of the home.
THE PROPERTY
- Short walk to the beachfront
- 3 Bedrooms
- Functional kitchen
- Functional bathroom
- Open-plan living and dining
- Large rear patio
- Two car carport to the right-hand side
- Generously sized 935 m2 allotment
THE LOCATION
- North of the suburb of Rollingstone
- Recreational boating, fishing and swimming area
- Boat ramp is located by the mouth of Rollingstone Creek,
- Close Mystic Sands Golf & Country Club
- General store/cafe
- Community hall
- Short drive to Balgal Beach Pharmacy and Doctors surgery
Please Note Professional photography and item removal have been used to protect the owner's privacy. Photos are edited to remove owners' belongings and these may show the home to a better standard than how it is presented.
Disclaimer: Whilst every care is taken in the preparation of the information contained in this marketing, Lynham & Co. will not be held liable for any errors in typing or information. All interested parties should rely upon their own enquiries in order to determine whether or not this information is in fact accurate.
Details
Price
$305,000
Property Type
House
Land Size
935 m2