36 Anita Avenue YABULU QLD 4818
2
1
2
Opportunity knocks with blank canvas on acreage
Sold by Shelly and Graham Lynham
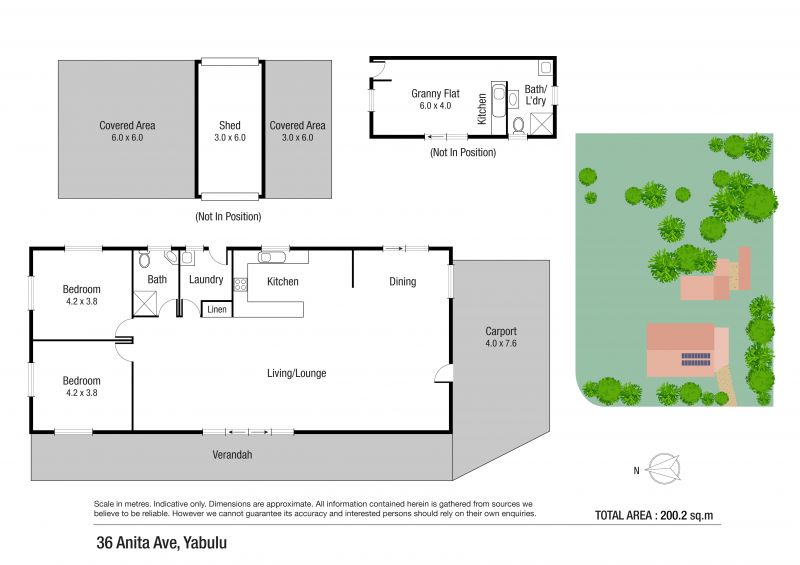
Built 1996 by the original owner, this low set generously sized two bedroom, home which is built on a corner allotment with dual street access, offers a blank canvass for the new buyer.
Set on one acre allotment, with an open plan living to the living and dining area, functional kitchen, it's large internal area creates an opportunity for this home to be easily made into a three bedroom home.
With rare additions such as one bedroom demountable which serves as granny flat, a small shed and an clear back yard with room for additional improvements such as shed or pool, it's fair to say that a rare find in the current rural residential market in Townsville.
THE PROPERTY
- Two bedrooms with room for another
- Easily converted to make three bedrooms
- Large open plan floorspace
- Good size bathroom
- Internal laundry
- Self contained granny flat
- Shipping container
- Shed with added bays either side for under cover parking
- Fruit trees
- Bore water
- Fully fenced yard
- Rates for current owner $2882.00 per year
THE LOCATION
- Short 5 minute drive to the BP Yabulu Fuel Station, Bluewater Medical Centre
and Bluewater State School
- Just over 10 minutes drive to St Anthony's Catholic College, Coles, and other
specialty shops
- Short drive to Bunnings in Northshore
- 30 minutes drive to Townsville CBD
- Various fresh water swimming sports near
- A boat ramp just off Bluewater Drive
Call us today on 47233222 or 0414250166 for a private inspection.
Disclaimer: All information contained herein has been gathered using every endeavour to ensure it is true and accurate and it has been gathered from sources we deem to be reliable. However, we cannot guarantee it's accuracy and accept no responsibility or liability in respect of any errors, omissions or inaccuracies that may occur. All prospective purchasers should endeavour to make their own enquiries to verify the accuracy of the information provided
Built 1996 by the original owner, this low set generously sized two bedroom, home which is built on a corner allotment with dual street access, offers a blank canvass for the new buyer.
Set on one acre allotment, with an open plan living to the living and dining area, functional kitchen, it's large internal area creates an opportunity for this home to be easily made into a three bedroom home.
With rare additions such as one bedroom demountable which serves as granny flat, a small shed and an clear back yard with room for additional improvements such as shed or pool, it's fair to say that a rare find in the current rural residential market in Townsville.
THE PROPERTY
- Two bedrooms with room for another
- Easily converted to make three bedrooms
- Large open plan floorspace
- Good size bathroom
- Internal laundry
- Self contained granny flat
- Shipping container
- Shed with added bays either side for under cover parking
- Fruit trees
- Bore water
- Fully fenced yard
- Rates for current owner $2882.00 per year
THE LOCATION
- Short 5 minute drive to the BP Yabulu Fuel Station, Bluewater Medical Centre
and Bluewater State School
- Just over 10 minutes drive to St Anthony's Catholic College, Coles, and other
specialty shops
- Short drive to Bunnings in Northshore
- 30 minutes drive to Townsville CBD
- Various fresh water swimming sports near
- A boat ramp just off Bluewater Drive
Call us today on 47233222 or 0414250166 for a private inspection.
Disclaimer: All information contained herein has been gathered using every endeavour to ensure it is true and accurate and it has been gathered from sources we deem to be reliable. However, we cannot guarantee it's accuracy and accept no responsibility or liability in respect of any errors, omissions or inaccuracies that may occur. All prospective purchasers should endeavour to make their own enquiries to verify the accuracy of the information provided
Details
Price
$450,000
Property Type
House
Land Size
4117 m2